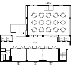
BANQUET 3F 宴会場
中宴会場 紅梅の間
小宴会場 雪・月・花
風雅なしつらえが落ち着いた雰囲気の中宴会場。
木質を主体とした重厚な壁面には、アクセントとしてミラーを配し、
シャンデリアは花びらを重ねたようなデザインで華やかさと柔らかさを醸し出しています。
最大立食パーティーで200名様収容。また用途により、会場を分割してご利用いただくこともできます。
面積・最大収容人数
| 全体スペース | 天井高(m) | 面積(m2) | 面積(坪) | 間口(m) | 奥行(m) | 収容人数 | ||||
|---|---|---|---|---|---|---|---|---|---|---|
| 着席 | 立食 | スクール | シアター | |||||||
| 中宴会場 紅梅 |
全体 | 5.5 | 350 | 106 | 21.8 | 16 | 180 | 200 | 200 | 300 |
| 1/2 | 175 | 53 | 10.9 | 80 | 80 | 70 | 150 | |||
| 小宴会場 雪・月・花 |
月+花 | 2.9 | 88 | 27 | 13.5 | 6.5 | 40 | 30 | 40 | 60 |
| 各部屋 | 44 | 13 | 6.7 | 20 | - | 30 | 30 | |||
